1 | 2 | 3 | 4 | 5 | 6 | 7 | 8 | 9
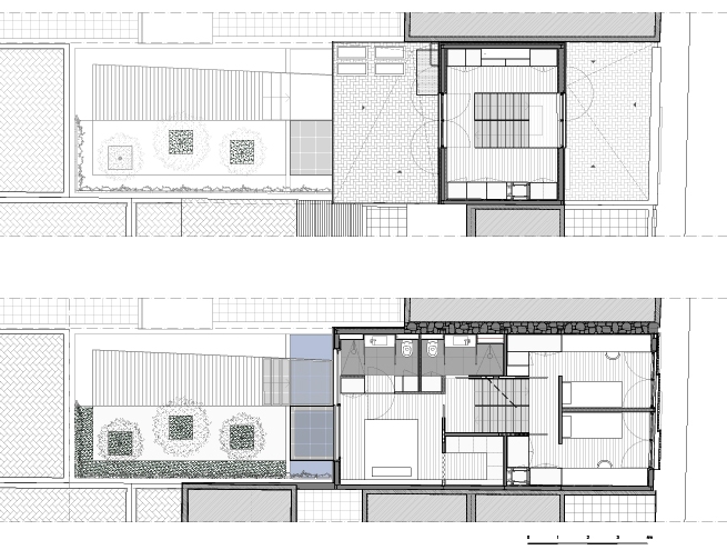
Planta primera y planta superior (caja de escalera)